Popis
Exkluzívne ponúkame na predaj priestranný slnečný 4-izbový byt s rozlohou 151,7 m² vrátane balkónu a loggie v obľúbenej lokalite na Račianskom mýte, len pár minút od centra mesta, osadený v krásnej vzrastlej zeleni.
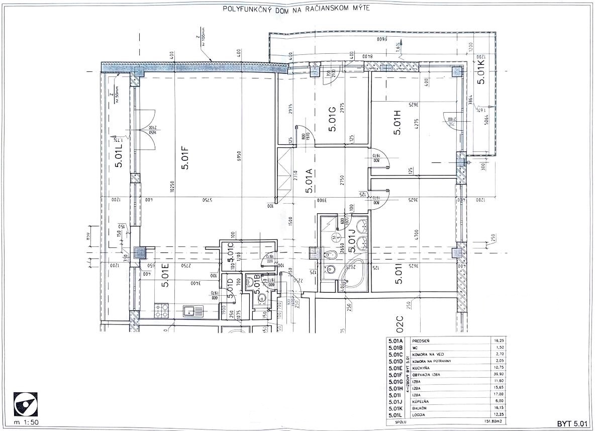
Byt sa nachádza na 5. poschodí 9-podlažnej budovy s výťahom a disponuje funkčným pôdorysom:
• Tri nepriechodné izby (11,60 m2, 15,65 m2, 17,00 m2)
• Kuchyňa spojená s obývacou izbou (50,65 m2)
• Predsieň (16,25 m2)
• Šatník (2,70 m2)
• Komora (2,05 m2)
• Kúpeľňa s WC (6 m2)
• Samostatné WC (1,50 m2)
• Balkón (16,15 m2)
• Loggia (12,25m2)
• Garáž spojená s pivnicou (41,20m2)
Byt je čiastočne zrekonštruovaný, má ústredné kúrenie s radiátormi a predáva sa kompletne zariadený, čo znamená, že sa môžete okamžite nasťahovať. K bytu patrí aj uzavretá podzemná garáž, ktorá je spojená dverami s pivnicou.
Budova je postavená zo železo-betonového skeletu s výplňou z hebela, čo zabezpečuje dobré akustické a tepelné vlastnosti. Je to ideálna voľba pre tých, ktorí hľadajú komfortné bývanie v blízkosti centra s výbornou dostupnosťou MHD.
Nezmeškajte túto príležitosť a kontaktujte nás pre viac informácií alebo dohodnutie obhliadky.
Naša realitná kancelária zabezpečí kompletný právny servis prostredníctvom renomovanej advokátskej kancelárie (tzv. priama autorizácia) vrátane podania návrhu na vklad a protokolárneho odovzdania nehnuteľnosti. Naši makléri, licencovaní finanční a hypotekárni sprostredkovatelia, vám radi poskytnú odborné poradenstvo ohľadom financovania a poistenia nehnuteľnosti.
- Principal and Interest
- Property Tax
- HOA fee
- Private Mortgage Insurance
















